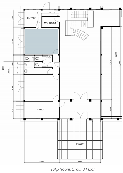
Tulip

Room

Ground Floor

Side room to the Mawar Gallery. Direct access to the garden. This space is ideal for buffet set up, private dining, dressing room, rehearsals, childcare and other uses.


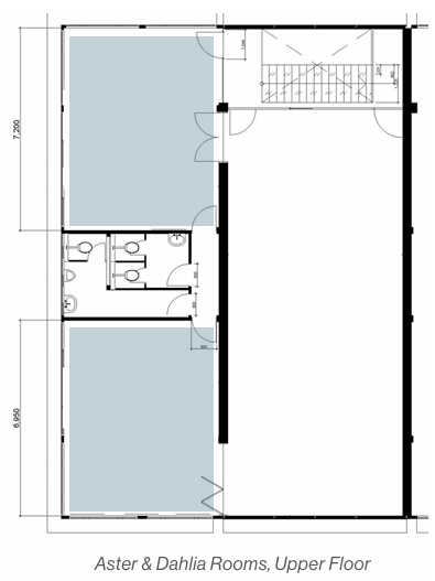
Dahlia Room

Ground Floor

Aster and Dahlia are side rooms to the Melati Hall. Among others, this space is ideal to meetings, buffet set up, private dining, dressing room, rehearsals, childcare.

Aster Room