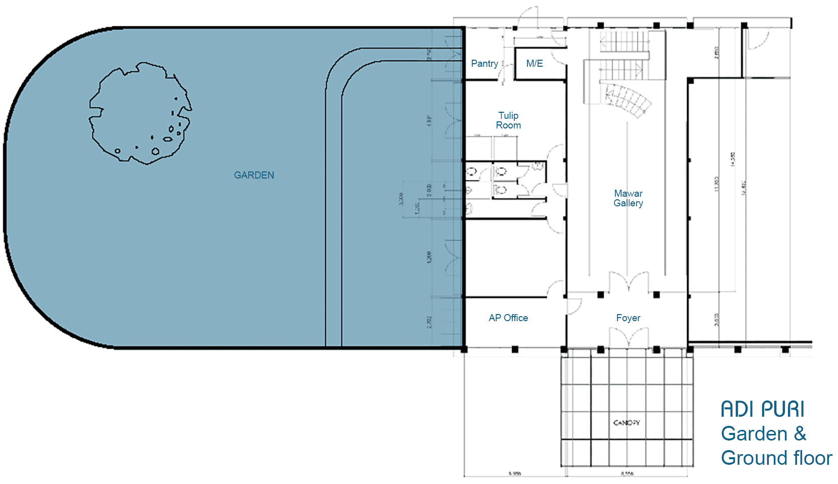
Soka

Garden

Romantic vintage greenery, in a large open versatile outdoor space.

Our nostalgic grand garden is a blank canvas for your theme. Private and secluded, in a boutique setting. A rare find the heart of Jakarta Selatan

Soka

Garden

  • Space 665m2
  • L 35 x W 19m
  • Direct access to parking, loading,
  • and to the main ADI PURI building.